Bad Honnef – Rhöndorf: Hochwertige Altbau-Maisonettewohnung mit ca. 105m² Wohnfläche
53604 Bad Honnef, Maisonettewohnung zur Miete
Kontaktdaten
-
NameHerr C. Alexander Werning
-
FirmaImmobilien A. Werning
-
AdresseHauptstraße 38f
53604 Bad Honnef -
E-Mail Zentrale
-
Tel. Zentrale
-
Website
Objektdaten
-
Objekt ID9800
-
Objekttypen
-
Adresse53604 Bad Honnef
-
Etage3
-
Etagenanzahl im Haus4
-
Wohnungsnummer3
-
Wohnfläche ca.105 m²
-
Zimmer3
-
Schlafzimmer2
-
Badezimmer1
-
BefeuerungGasheizung, Etagenheizung
-
Baujahr1902
-
Letzte Modernisierung2020
-
ZustandGepflegt
-
Verfügbar ab01.02.2026
-
StellplätzeAnzahl: 2 Freiplatz: 2 (Mietpreis: 40EUR)
-
Nebenkosten150 EUR
-
Kaution2.730,00€
-
Kaltmiete1.365 EUR
Ausstattung / Merkmale
- Dusche
- Etagenheizung
- Freier Stellplatz
- Gasheizung
- Keller
- Parkett
- Tageslichtbad
Energiebedarfsausweis
-
Ausstelldatum01.02.2024
-
Gültig bis31.01.2034
-
Baujahr1902
-
PrimärenergieträgerGas
-
EnergieeffizienzklasseH
-
Endenergiebedarf342 kWh/(m²·a)
Objektbeschreibung
Beschreibung
Am Fuße der Weinberge des Drachenfels befindet sich die im Jahr 1902 errichtete „Villa Clara“. Das Gebäude im Stil des Historismus präsentiert sich in einem sehr gepflegten Zustand und ist in drei Wohneinheiten aufgeteilt. Direkt hinter dem Haus beginnen die Weinberge und die ersten Wanderwege im Siebengebirge.
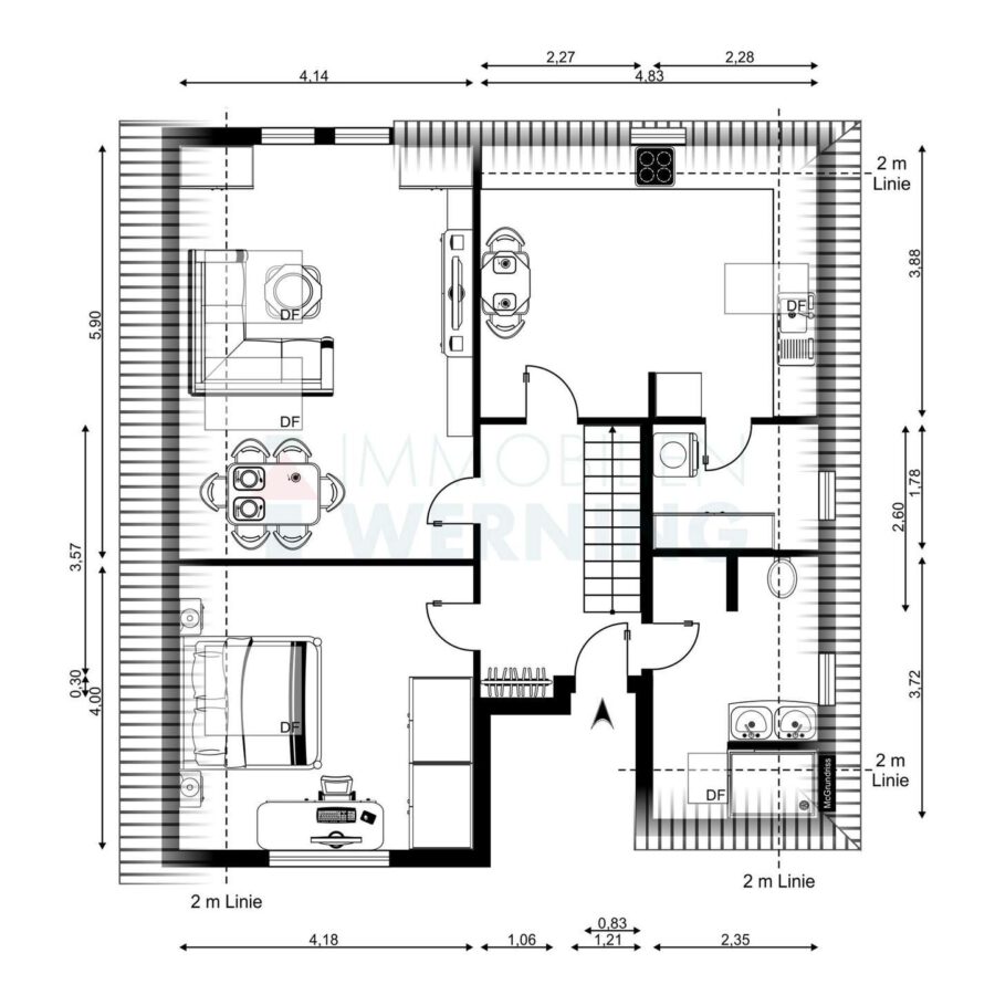
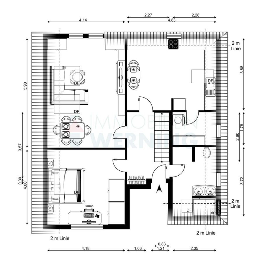
Die hier angebotene Maisonettewohnung liegt Dachgeschoss (2.OG und Spitzboden) und erstreckt sich mit drei Zimmern auf ca. 105 m² Wohnfläche. Alle Wohnräume sowie die Küche sind mit hochwertigem Eichenparkett ausgestattet.
Sie betreten die Wohnung in den großzügigen Flur mit moderner Stahltreppe und Kassettentüren.
Zur linken Seite befindet sich das Schlafzimmer. Durch den erhöhten Drempel finden auch hohe Betten ausreichend Platz.
Rechts neben dem Schlafzimmer gelangen Sie in das Wohnzimmer. Zwei große Dachflächenfenster sowie zwei Fenster im Giebel sorgen hier für einen sehr hellen Raumeindruck.
Die Küche verfügt ebenfalls über eine eigene, kleinere Gaube und ein zweites Dachflächenfenster. Sehr praktisch: An die Küche schließt eine Vorratskammer an. (Die Wohnung wird ohne Einbauküche vermietet).
Das hochwertige Badezimmer ist mit dunkelgrauen Fliesen ausgelegt und verfügt über eine große, offene Dusche, ein Doppelwaschbecken sowie ein Fenster.
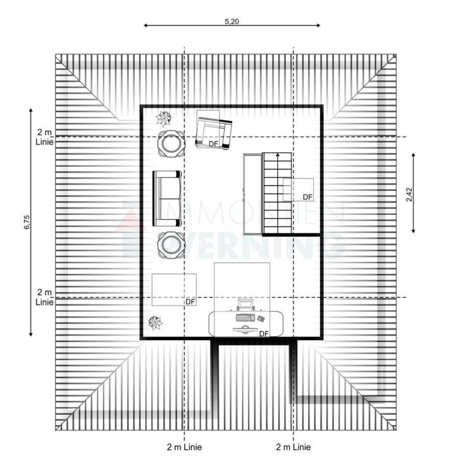
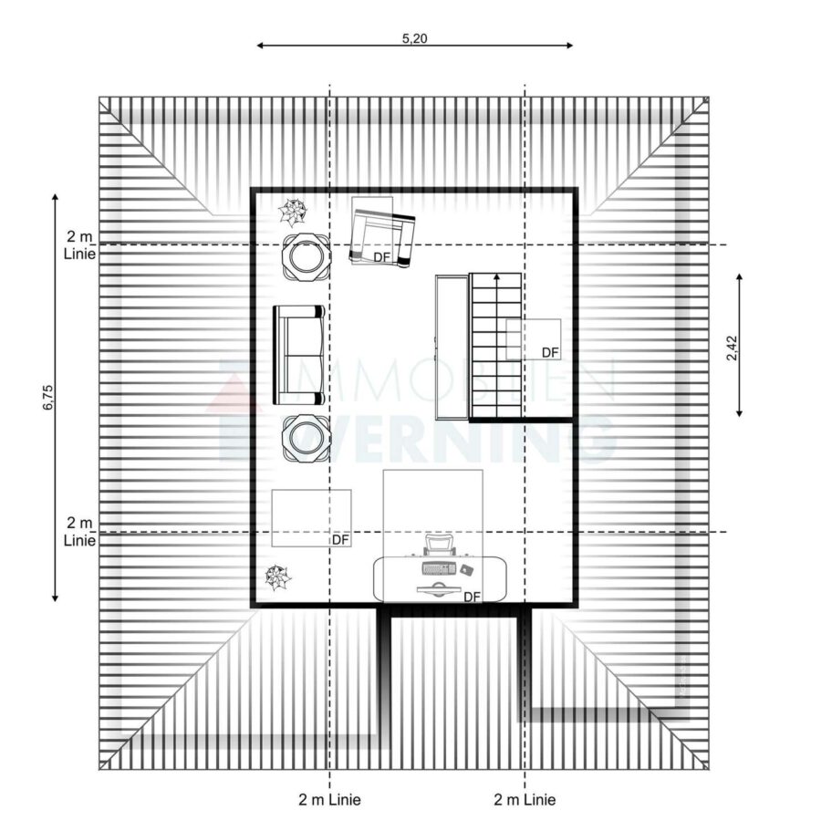
Über die Stahltreppe gelangen Sie in das Dachstudio. Dieses besonders helle Zimmer bietet durch sieben große Fenster einen schönen Ausblick auf den Weinberg und den Drachenfels. Das Dachstudio eignet sich sehr gut als Büro oder Gästezimmer an.
Vor der Wohnung befindet sich ein separater Hauswirtschaftsraum mit Anschlüssen für Waschmaschine und Trockner.
Hinter dem Haus gelangen Sie in den Hof mit zwei Außenstellplätzen für die Wohnung.
Ausstattung
- 3 Zimmer, Küche, Diele, Bad, HWR, Keller
- stilvoller Altbau
- umfassende Sanierung 2020
- Eichenparkett
- Deckenspots
- Kassettentüren
- hochwertiges Badezimmer mit großer Dusche
- 2 Außenstellplätze (zusammen 80,00€ / Monat)
- eigene Heizung (Abrechnung direkt mit Versorger)
- Die Wohnung verfügt über keine Einbauküche
Sonstige Informationen
Mieter*innenprofil:
- max. 2 Personen
- Haustiere nach Absprache erlaubt
Alle in diesem Exposé gemachten Angaben basieren auf den Angaben des Vermieters und wurden nicht von uns überprüft. Dieses Exposé wurde vom Vermieter gelesen und genehmigt. Auch wenn wir größte Sorgfalt auf die Richtigkeit unserer Exposés legen, wird keine Haftung für deren Richtigkeit übernommen. Alle Daten sind Circaangaben ohne Gewähr. Alle Animationen stellen nur einen groben Eindruck dar und erheben keinen Anspruch auf Richtigkeit. Möblierungen sind Beispiele und sind nicht im Mietpreis enthalten. Zwischenzeitliche Änderungen bleiben vorbehalten.
Lage
Die "Villa Clara" befindet sich in Bad Honnef - Rhöndorf, zwischen dem Domstein und dem pittoresken Ziepchesplatz. Durch die Lage direkt am Fuße des Weinberges beginnen direkt an Ihrer neuen Wohnung die schönsten Wanderwege des Siebengebirges. Vom Haus aus erreichen Sie die Innenstadt von Bad Honnef in nur ca. 3km Entfernung, die nächste S-Bahn (Rhöndorf) in nur ca. 500m und die Auffahrt zur B42 in Richtung Bonn oder Linz in ca. 300m Entfernung.












